雙向密封軟密封球閥 Q347F
- 產 地:上海
- 型 號:Q347F
- 公稱壓力:1.0MPa~6.4MPa
- 公稱通徑:DN50~DN600
- 適用介質:WOG
- 適用溫度:-29~150℃
一、產品概述
雙向密封軟密封球閥Q347F分兩段式和三段式又稱側裝分體式球閥,將閥體沿與閥門通道軸線相垂直的截面分為不對稱的左右兩半,它在管道上主要用于切斷、分配和改變介質流動方面。它的樞軸結構保證了了準確的球體位置。標準閥座采用彈簧結構,將閥座推向球體,保證了良好的低壓密封性能。該球閥閥前,閥后閥座都能密封,即所謂雙向密封特性,利用自帶的排放閥,閥體中腔可向外排放。樞軸采用防吹出保護結構,低摩擦系數的軸承等。雙向密封球閥適用于化工、石油、天然氣、冶金、等行業及含硫化氫介質、雜質多、腐蝕嚴重的天然氣長輸管。
法蘭式固定式球閥 Q347F產品特點:
1、流體阻力小、球閥是所有閥類中流體阻力較小的一種,即使是縮徑球閥,其流體阻力也相當小。
2、止推軸承減小閥桿磨擦力矩,可使閥桿長期操作平穩靈活。
3、閥座密封性能好,采用聚四氟乙烯等彈性材料制成的密封圈,結構易于密封,而且球閥的閥封能力隨著介質壓力的增高而增大。
4、閥桿密封可靠,由于閥桿只作彷轉動運而不做升降運動,閥桿的填料密封不易破壞,且密封能力隨著介質的壓力增高而增大。
5、由于聚四氟乙烯等材料具有良好的自潤滑性,與球體的磨擦損失小,故球閥的使用壽命長。
6、下裝式閥桿和閥桿頭部凸階防止閥桿噴出,如火災造成閥桿密封破壞,凸階與閥體間還可形成金屬接觸,確保閥桿密封。
7、 防靜電功能:在球體、閥桿、閥體之間設置彈簧,能將開關過程產生的靜電導出。
二、主要技術參數
|
設計依據 |
GB系列 GB | API系列 API | |
|---|---|---|---|
|
設計標準 |
GB/T12237 |
API6D |
ANSI B16.34 |
|
法蘭連接結構長度 |
GB/T12221 |
API6D |
ANSI B16.10 |
|
結構長度(焊接) |
GB/T15188.1 |
API6D |
ANSI B16.10 |
|
連接法蘭 |
GB/T9113 |
ANSI B16.5、B16.47 |
|
|
對焊端 |
GB/T12224 |
ANSI B16.25 |
|
|
試驗和檢驗 |
GB/T9092 |
AP16D |
API598 |
|
壓力等級 |
試驗壓力 (MPa) | ||
|---|---|---|---|
|
公稱壓力 (PN) |
磅級 (class) |
殼體試驗 |
密封試驗 |
|
1.O |
- |
1.5 |
1.1 |
|
1.6 |
- |
2.5 |
1.76 |
|
2.5 |
- |
3.8 |
2.75 |
|
4.0 |
- |
6.0 |
4.4 |
|
6.4 |
- |
9.6 |
7.04 |
|
- |
150 |
3.0 |
2.2 |
|
- |
300 |
7.6 |
5.6 |
|
- |
600 |
15.0 |
11.0 |
|
- |
1Ok |
2.4 |
1.5 |
|
- |
20k |
5.8 |
4.0 |
三、主要零部件材料
|
零件名稱 |
材料 |
|||
|
材料代號 |
C |
L |
P |
R |
|
閥體 閥蓋 |
WCB |
ZGOOCr17Ni14Mo2(CF3M) |
ZG1Cr18Ni9Ti(CF8) |
ZG1Cr18Ni12Mo2Ti(CF8M) |
|
球體 |
2Cr13 |
ZGOOCr17Ni14Mo2(CF3M) |
ZG1Cr18Ni9Ti(CF8) |
ZG1Cr18Ni12Mo2Ti(CF8M) |
|
閥桿 |
2Cr13 |
316L |
1Cr18Ni9Ti(304) |
1Cr18Ni12Mo2Ti(316) |
|
閥座密封面 |
PTFE、碳素纖維+PTFE、對位聚苯 |
|||
|
螺柱 螺母 |
35 35CrMoA(B7) 45(2H) |
2Cr13(420) 1Cr18Ni9 1Cr17Ni2(431) |
||
|
填料 |
V型PTFE、柔性石墨 |
|||
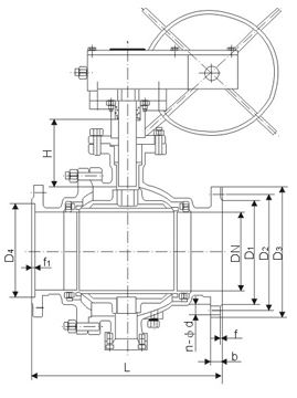
四、主要外形與連接尺寸
|
稱通徑 |
50 |
65 |
80 |
100 |
125 |
150 |
200 |
250 |
300 |
350 |
400 |
450 |
500 |
600 |
|
D1 |
51 |
64 |
76 |
102 |
127 |
152 |
203 |
254 |
305 |
337 |
387 |
438 |
489 |
591 |
|
L |
178 |
191 |
203 |
229 |
356 |
394 |
457 |
533 |
610 |
686 |
762 |
864 |
914 |
1067 |
|
H1 |
102 |
114 |
127 |
152 |
184 |
219 |
273 |
364 |
395 |
430 |
470 |
550 |
580 |
700 |
|
H2 |
107 |
125 |
152 |
178 |
300 |
330 |
398 |
495 |
580 |
625 |
670 |
698 |
840 |
1050 |
|
E |
|
|
|
|
|
|
116 |
116 |
171 |
171 |
257 |
257 |
257 |
150 |
|
F |
|
|
|
|
|
|
350 |
350 |
420 |
420 |
400 |
400 |
400 |
410 |
|
W |
230 |
400 |
400 |
650 |
1050 |
1050 |
600 |
600 |
800 |
800 |
800 |
800 |
800 |
800 |
|
W(kg) |
12 |
16 |
22 |
35 |
58 |
74 |
205 |
322 |
460 |
576 |
864 |
1280 |
1600 |
3450 |





